Gallery Img
Gallery Img
Gallery Img
Gallery Img
Gallery Img
Gallery Img
Gallery Img
Gallery Img
Gallery Img
Gallery Img

PTB - UMBAU ALTE BIBLIOTHEK, Berlin


PTB - UMBAU ALTE BIBLIOTHEK

Berlin . 2024

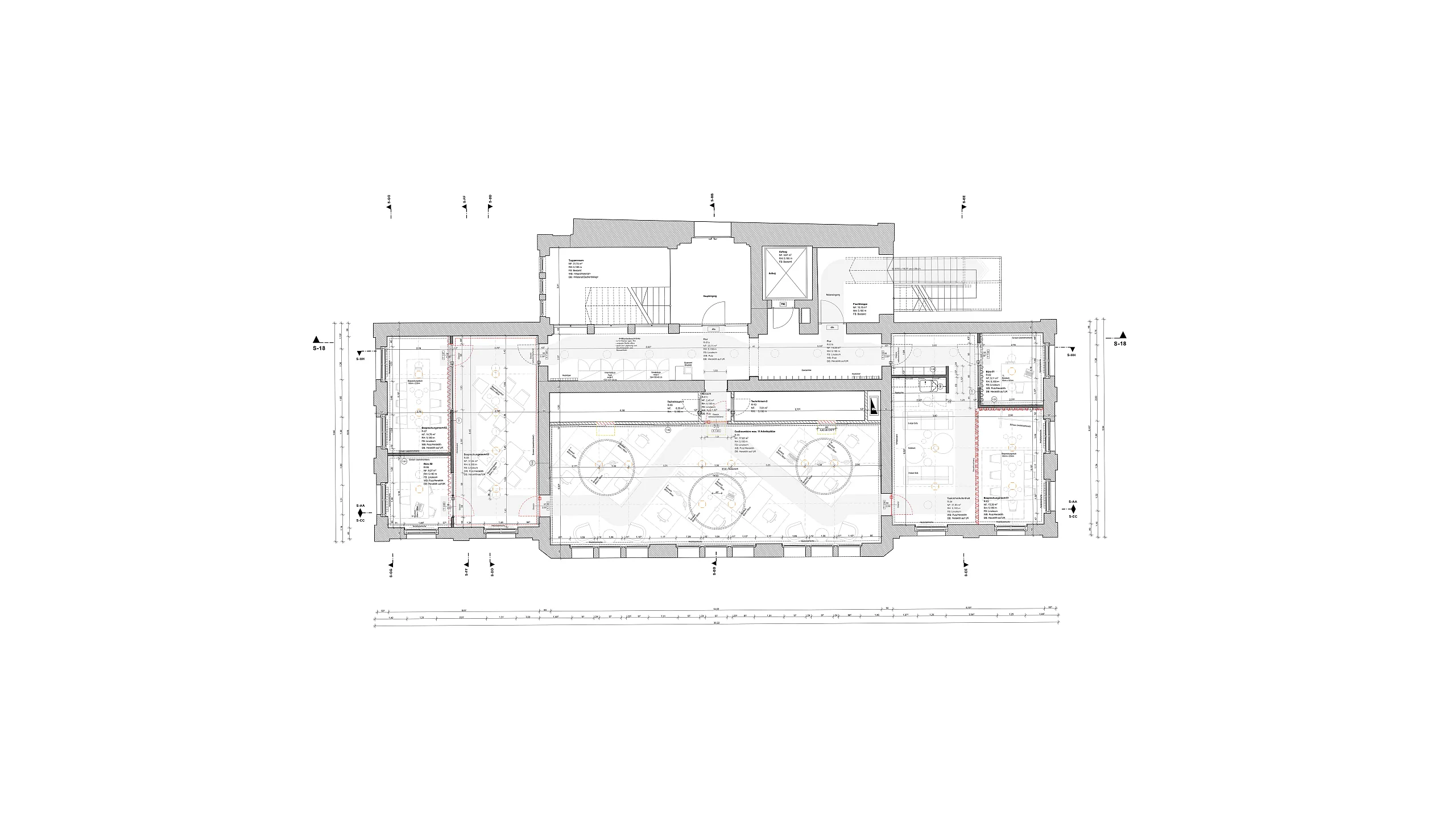
Auf dem Gelände der PTB wird die Alte Bibliothek im 1. OG des Hermann- von- Helmholtz- Baus zu Büroräumen für die Mitarbeiter und Mitarbeiterinnen der PTB umgeplant. Ziel ist es, eine Arbeitswelt mit unterschiedlichen Raumqualitäten zu schaffen, die eine kommunikative Arbeitsweise und den Austausch unter Kollegen und Kolleginnen fördern, Rückzugsmöglichkeiten für ruhiges Arbeiten ermöglichen und ein hohes Maß an Flexibilität bieten. Der Entwurf betont die attraktiven Eigenschaften der Bestandsräume mit einer Raumhöhe von ca. 5,00m und den Fassaden an der Süd-, Ost- und Westseite mit großformatigen Kastenfenstern. Die Bestandsöffnungen in den tragenden Mauerwerkswänden werden genutzt und in ein fließendes Raumkonzept aufgenommen, das durch die Verwendung von einheitlichen Materialien in allen Räumen unterstützt wird.

Projektstandort

Berlin, Deutschland

Zeitraum

Vergabeverfahren _ 2024 – Zuschlag
Realisierung _ 2024-2026

Daten zum Bau

NF _ 200 m²

Auftraggeber

PTB Physikalisch-Technische Bundesanstalt Braunschweig und Berlin

Bilder

Riegler Riewe Architekten

Auf dem Gelände der PTB wird die Alte Bibliothek im 1. OG des Hermann- von- Helmholtz- Baus zu Büroräumen für die Mitarbeiter und Mitarbeiterinnen der PTB umgeplant. Ziel ist es, eine Arbeitswelt mit unterschiedlichen Raumqualitäten zu schaffen, die eine kommunikative Arbeitsweise und den Austausch unter Kollegen und Kolleginnen fördern, Rückzugsmöglichkeiten für ruhiges Arbeiten ermöglichen und ein hohes Maß an Flexibilität bieten. Der Entwurf betont die attraktiven Eigenschaften der Bestandsräume mit einer Raumhöhe von ca. 5,00m und den Fassaden an der Süd-, Ost- und Westseite mit großformatigen Kastenfenstern. Die Bestandsöffnungen in den tragenden Mauerwerkswänden werden genutzt und in ein fließendes Raumkonzept aufgenommen, das durch die Verwendung von einheitlichen Materialien in allen Räumen unterstützt wird.

Projektstandort

Berlin, Deutschland

Zeitraum

Vergabeverfahren _ 2024 – Zuschlag
Realisierung _ 2024-2026

Daten zum Bau

NF _ 200 m²

Auftraggeber

PTB Physikalisch-Technische Bundesanstalt Braunschweig und Berlin

Bilder

Riegler Riewe Architekten