Gallery Img
Gallery Img

Parkhaus Flughafen Graz, Graz


Parkhaus Flughafen Graz

Graz . 1998

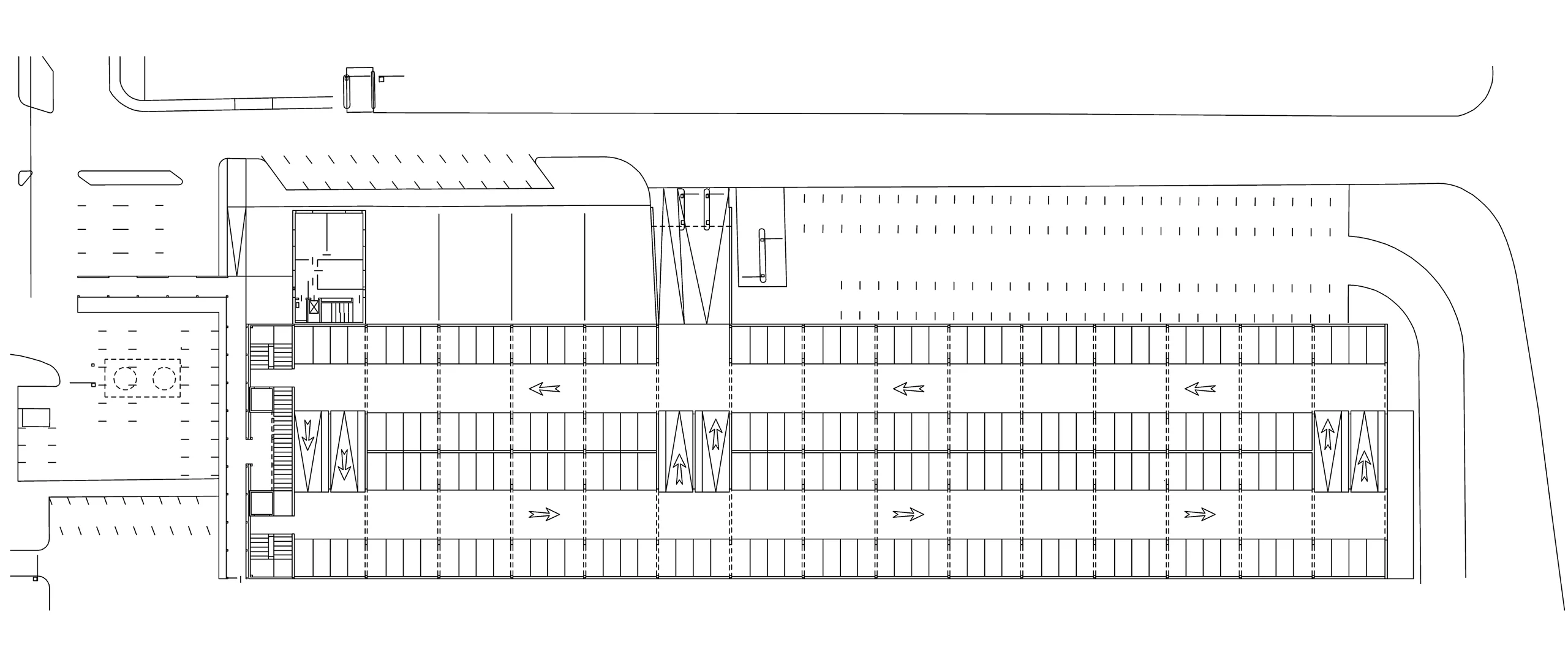
Das Parkhaus am Grazer Flughafen wurde als Antwort auf den gestiegenen Parkraumbedarf in drei Modulen mit jeweils 300 Stellplätzen konzipiert. Die bauliche Umsetzung erfolgte nacheinander und bedarfsorientiert, wobei das erste Modul bereits die gesamte Erschließung beinhaltet. Im dritten Modul befindet sich ein weiteres Rampenpaar.
Das Parkhaus fasst 900 PKW und ist als D’Humy-Typologie entwickelt, was hohe Flächeneffizienz bedeutet durch die Erschließung halbgeschossig versetzter Parkebenen mit Halbrampen. Die fußläufige Erschließung der offenen, natürlich belüftete Großgarage wurde stirnseitig in direkter Anbindung an den Terminal situiert.
Im Rahmen des Leitsystems erhielt jede Parkhaushälfte eine Farbe und einen Buchstaben zugewiesen – rot und grün, A und B. Die Geschossebenen sind in den jeweiligen Farben mit Zahlen und Balken, die die Anzahl der Geschosse wiedergeben, markiert.
Um den, ebenfalls durch die Flughafenerweiterung entstandenen Mehrbedarf an Büroflächen gerecht zu werden, wurden Büromodule entwickelt, die in zeitlicher Abfolge unabhängig voneinander realisiert werden konnten. Verortet sind die Büromodule an den geschlossenen Fassadenbereichen des Parkhauses, die natürliche Belüftung des Parkhauses wird dadurch nicht beeinträchtigt. Durch die tragenden Fassaden und den gänzlichen Verzicht auf Stützen im Innenbereich konnte ein Höchstmaß an Flexibilität für die im Planungsprozess noch unbekannten Mieter gewährleistet werden.

 

Projektstandort

Graz, Österreich

Zeitraum

Realisierung _ 1996 - 1997

Auftraggeber

Flughafen Graz Betriebs GmbH

Bilder

Paul Ott

Das Parkhaus am Grazer Flughafen wurde als Antwort auf den gestiegenen Parkraumbedarf in drei Modulen mit jeweils 300 Stellplätzen konzipiert. Die bauliche Umsetzung erfolgte nacheinander und bedarfsorientiert, wobei das erste Modul bereits die gesamte Erschließung beinhaltet. Im dritten Modul befindet sich ein weiteres Rampenpaar.
Das Parkhaus fasst 900 PKW und ist als D’Humy-Typologie entwickelt, was hohe Flächeneffizienz bedeutet durch die Erschließung halbgeschossig versetzter Parkebenen mit Halbrampen. Die fußläufige Erschließung der offenen, natürlich belüftete Großgarage wurde stirnseitig in direkter Anbindung an den Terminal situiert.
Im Rahmen des Leitsystems erhielt jede Parkhaushälfte eine Farbe und einen Buchstaben zugewiesen – rot und grün, A und B. Die Geschossebenen sind in den jeweiligen Farben mit Zahlen und Balken, die die Anzahl der Geschosse wiedergeben, markiert.
Um den, ebenfalls durch die Flughafenerweiterung entstandenen Mehrbedarf an Büroflächen gerecht zu werden, wurden Büromodule entwickelt, die in zeitlicher Abfolge unabhängig voneinander realisiert werden konnten. Verortet sind die Büromodule an den geschlossenen Fassadenbereichen des Parkhauses, die natürliche Belüftung des Parkhauses wird dadurch nicht beeinträchtigt. Durch die tragenden Fassaden und den gänzlichen Verzicht auf Stützen im Innenbereich konnte ein Höchstmaß an Flexibilität für die im Planungsprozess noch unbekannten Mieter gewährleistet werden.

 

Projektstandort

Graz, Österreich

Zeitraum

Realisierung _ 1996 - 1997

Auftraggeber

Flughafen Graz Betriebs GmbH

Bilder

Paul Ott