Gallery Img
Gallery Img
Gallery Img
Gallery Img
Gallery Img
Gallery Img
Gallery Img
Gallery Img
Gallery Img

Mathematisches Gymnasium Varna, Varna


Mathematisches Gymnasium Varna

Varna .

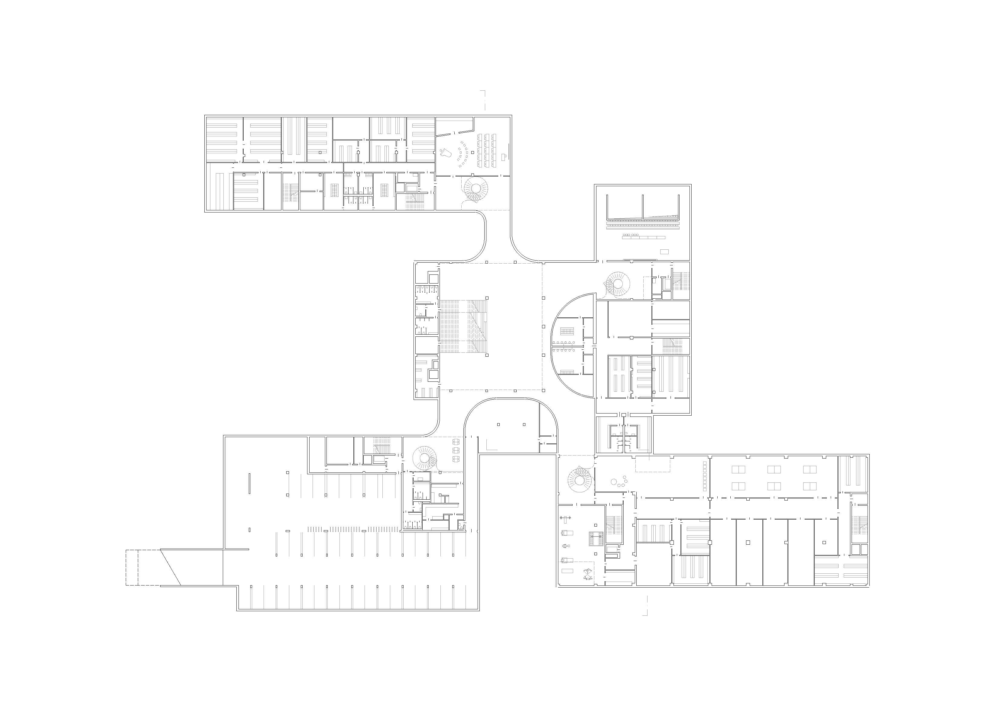
Die Hafenstadt Varna liegt an der Schwarzmeerküste und ist nach Sophia und Plovdiv die drittgrößte Stadt Bulgariens. Der neu entwickelte Schulkomplex der High School of Mathematics “Dr. Petar Beron” gilt als erster öffentlicher Schulneubau seit 1960.
Das Gebäudeensemble bietet Platz für mehr als 1.300 Schülerinnen und Schüler und über 150 Mitarbeitende. Vier viergeschossige Baukörper sitzen inmitten einer großflächigen Parklandschaft, durch die Positionierung zueinander erzeugen sie differenzierte, vielfältig nutzbare Außenräume. Ein zentraler zweigeschossiger Eingangspavillon markiert den Hauptzugang und führt zum Schulforum im Untergeschoss. Die Mehrgeschossigkeit und offene Gestaltung dieser Zone ermöglicht unterschiedliche räumliche Bezüge zwischen den einzelnen Nutzungsbereichen. Das lichtdurchflutete Forum verbindet alle Schulhäuser über zweigeschossige Lufträume, es bildet die gemeinsame Mitte der gesamten Anlage.
In den aufgehenden Baukörpern befinden sich die Unterrichtsräume der allgemeinen und speziellen Lehre. Sämtliche Lehrbereiche sind als flexible und offene Raumstrukturen angelegt. Durch das Auffalten großflächiger Wandteile können, je nach Anforderung, verschiedenste räumliche Situationen erzeugt, und die vor- beziehungsweise zwischengelagerten Studierbereiche in den Unterricht miteingebunden werden. Geschossweise sich abwechselnde Loggien und Balkone stellen direkte Außenraumbezüge her und fördern eine vielfältige und abwechslungsreiche Bespielung der Flächen. Die Hinzunahme der größten Dachfläche als Erweiterung der außenliegenden Sportflächen erhöht das Nutzungsangebot und hält gleichzeitig wesentliche Bereiche der Parklandschaft frei von zusätzlicher Versiegelung.

 

Projektstandort

Varna, Bulgarien

Zeitraum

Wettbewerb _ 2023 – 1. Preis
Planung _ 2023 - 2024

Daten zum Bau

BGF _ ca. 30.000 m²
NF _ ca. 18.000 m²

Auftraggeber

Stadtgemeinde Varna

Bilder

Riegler Riewe Architekten / VIZE

Die Hafenstadt Varna liegt an der Schwarzmeerküste und ist nach Sophia und Plovdiv die drittgrößte Stadt Bulgariens. Der neu entwickelte Schulkomplex der High School of Mathematics “Dr. Petar Beron” gilt als erster öffentlicher Schulneubau seit 1960.
Das Gebäudeensemble bietet Platz für mehr als 1.300 Schülerinnen und Schüler und über 150 Mitarbeitende. Vier viergeschossige Baukörper sitzen inmitten einer großflächigen Parklandschaft, durch die Positionierung zueinander erzeugen sie differenzierte, vielfältig nutzbare Außenräume. Ein zentraler zweigeschossiger Eingangspavillon markiert den Hauptzugang und führt zum Schulforum im Untergeschoss. Die Mehrgeschossigkeit und offene Gestaltung dieser Zone ermöglicht unterschiedliche räumliche Bezüge zwischen den einzelnen Nutzungsbereichen. Das lichtdurchflutete Forum verbindet alle Schulhäuser über zweigeschossige Lufträume, es bildet die gemeinsame Mitte der gesamten Anlage.
In den aufgehenden Baukörpern befinden sich die Unterrichtsräume der allgemeinen und speziellen Lehre. Sämtliche Lehrbereiche sind als flexible und offene Raumstrukturen angelegt. Durch das Auffalten großflächiger Wandteile können, je nach Anforderung, verschiedenste räumliche Situationen erzeugt, und die vor- beziehungsweise zwischengelagerten Studierbereiche in den Unterricht miteingebunden werden. Geschossweise sich abwechselnde Loggien und Balkone stellen direkte Außenraumbezüge her und fördern eine vielfältige und abwechslungsreiche Bespielung der Flächen. Die Hinzunahme der größten Dachfläche als Erweiterung der außenliegenden Sportflächen erhöht das Nutzungsangebot und hält gleichzeitig wesentliche Bereiche der Parklandschaft frei von zusätzlicher Versiegelung.

 

Projektstandort

Varna, Bulgarien

Zeitraum

Wettbewerb _ 2023 – 1. Preis
Planung _ 2023 - 2024

Daten zum Bau

BGF _ ca. 30.000 m²
NF _ ca. 18.000 m²

Auftraggeber

Stadtgemeinde Varna

Bilder

Riegler Riewe Architekten / VIZE