Gallery Img
Gallery Img
Gallery Img
Gallery Img
Gallery Img
Gallery Img
Gallery Img
Gallery Img
Gallery Img

Mobility Hub , Bremerhaven Külkenhalbinsel


Mobility Hub

Bremerhaven Külkenhalbinsel . Nicht offener einstufiger Planngswettbewerb_2025

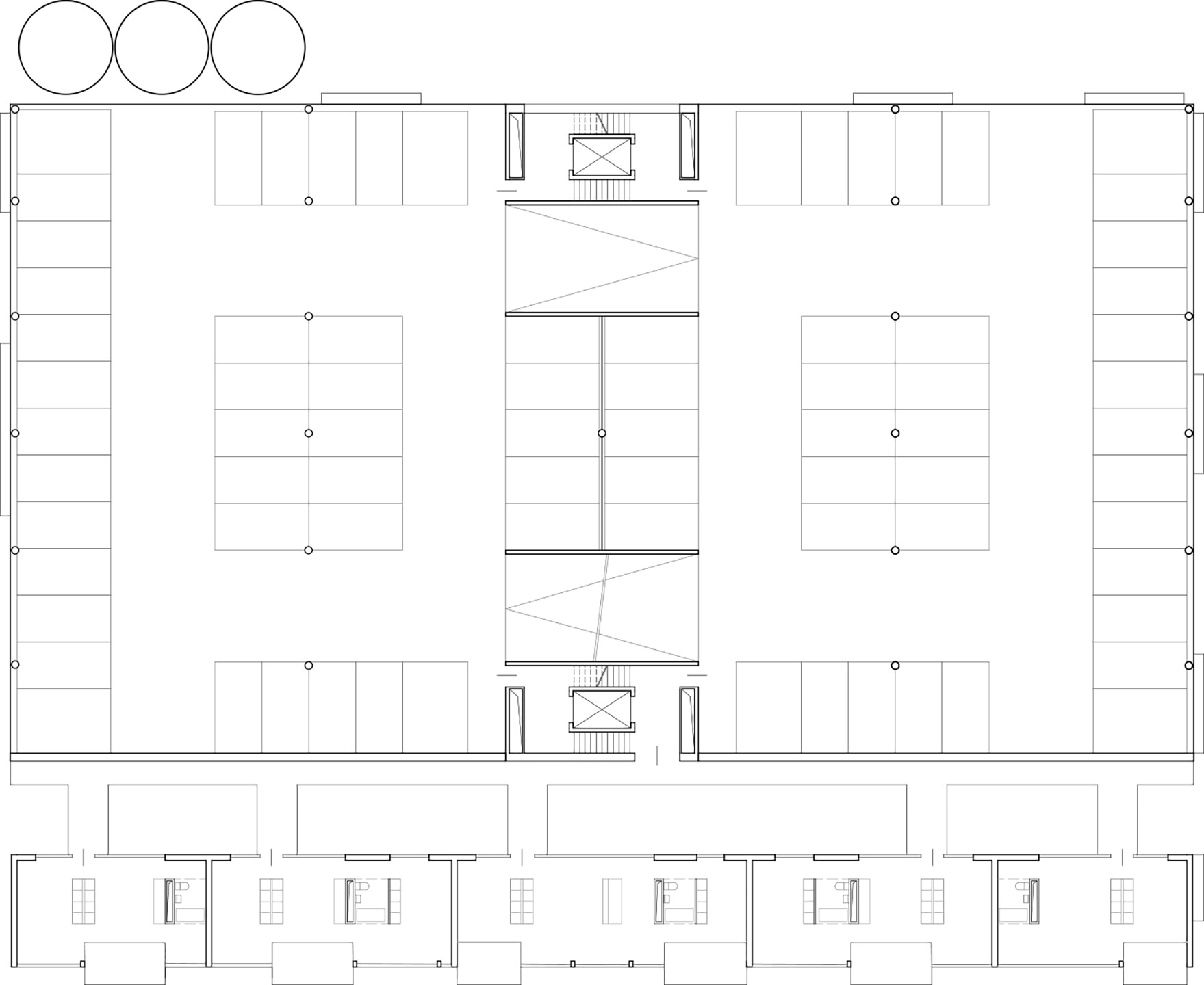
Das Projekt Mobility Hub Külkenhalbinsel in Bremerhaven konzipiert Stadtentwicklung zukunftsfähig. Im Fokus steht die Resilienz unseres Entwurfs, um vielfältigste Nutzungsänderungen nahtlos aufzunehmen, analog zur Langlebigkeit historischer Gebäude. Dies bedeutet, das Parkhaus ist mit einer Geschosshöhe von 3.20m ausgelegt, was eine unkomplizierte Adaptierung von Parken zu Wohnen ermöglicht. Der Wohnungsbau weist flexible 6.00m quergespannte Holzhybriddecken auf, die verschiedenste Wohnungskonfigurationen und "Loft-like Living" erlauben, angepasst an sich ändernde Bedürfnisse. Eine mitgenutzte Erschließung von Park- und Wohnhaus unterstreicht dieses effiziente, anpassungsfähige Design.

Nachhaltigkeit ist fundamental. Wir setzen auf "Weiterbauen", maximieren die Wiederverwendung gebunkerter grauer Energie und minimieren Abfall. Der Hub integriert ein umfassendes PV-Dach und Wärmepumpentechnologie für die Quartiersversorgung, mit dem Ziel eines CO2-neutralen Betriebs. Unser blau-grünes Regenwassermanagement, das gesammeltes Wasser zur Fassadenbegrünung nutzt, verbessert die ökologische Bilanz zusätzlich.

Das Projekt kultiviert eine starke lokale Identität durch die respektvolle Transformation der industriellen Vergangenheit der Külkenhalbinsel, die das kollektive Gedächtnis des Ortes anspricht. Das großvolumige Parkhaus spiegelt bewusst die Dimension großer Gewerbebauten wider und wird zu einem neuen, prägenden Baustein. Seine einzigartige Fassade mit grün eingefärbten GFK-Gitterrosten, die an rostenden Stahl erinnern, schlägt symbolisch eine Brücke zwischen dem Industrieerbe und einer grüneren Zukunft. Dies, zusammen mit "Pioneer Units" für resiliente Fassadenbegrünung, schafft einen unverwechselbaren Ortssinn, der die Historie des Standorts widerhallt.

Über die physische Struktur hinaus soll der Mobility Hub ein lebendiger Ankerpunkt für die Gemeinschaft werden. Er wird essentielle Dienstleistungen, Mikromobilitätsangebote, Ladestationen und 24/7-Einrichtungen beherbergen. Sein Potenzial zur Umwandlung in eine dynamische Eventfläche festigt seine Rolle als Anlaufstelle für Bewohner und die gesamte Külkenhalbinsel.

 

 

Projektstandort

Bremerhaven Külkenhalbinsel, Deutschland

Zeitraum

Nicht offener einstufiger Planngswettbewerb_2025

Auftraggeber

BIS mbH Bremerhaven, Land Bremen & Stadt Bremerhaven

In Zusammenarbeit mit

Projektleiter: Roger Riewe, Miriam Koudmani

Mitarbeiter: Maja Bäumer, Sebastian Henschel, Malgorzata Lizak, Tom Nitzsche, Robert Schalow

Fachplaner: LA.BAR Landschaftsarchitekten – Rüdiger Amend / WvS Part mbB – Wolfgang Keen / M&P Hamburg GmbH – Matthias Stehn

Bilder

Riegler Riewe Architekten

Das Projekt Mobility Hub Külkenhalbinsel in Bremerhaven konzipiert Stadtentwicklung zukunftsfähig. Im Fokus steht die Resilienz unseres Entwurfs, um vielfältigste Nutzungsänderungen nahtlos aufzunehmen, analog zur Langlebigkeit historischer Gebäude. Dies bedeutet, das Parkhaus ist mit einer Geschosshöhe von 3.20m ausgelegt, was eine unkomplizierte Adaptierung von Parken zu Wohnen ermöglicht. Der Wohnungsbau weist flexible 6.00m quergespannte Holzhybriddecken auf, die verschiedenste Wohnungskonfigurationen und "Loft-like Living" erlauben, angepasst an sich ändernde Bedürfnisse. Eine mitgenutzte Erschließung von Park- und Wohnhaus unterstreicht dieses effiziente, anpassungsfähige Design.

Nachhaltigkeit ist fundamental. Wir setzen auf "Weiterbauen", maximieren die Wiederverwendung gebunkerter grauer Energie und minimieren Abfall. Der Hub integriert ein umfassendes PV-Dach und Wärmepumpentechnologie für die Quartiersversorgung, mit dem Ziel eines CO2-neutralen Betriebs. Unser blau-grünes Regenwassermanagement, das gesammeltes Wasser zur Fassadenbegrünung nutzt, verbessert die ökologische Bilanz zusätzlich.

Das Projekt kultiviert eine starke lokale Identität durch die respektvolle Transformation der industriellen Vergangenheit der Külkenhalbinsel, die das kollektive Gedächtnis des Ortes anspricht. Das großvolumige Parkhaus spiegelt bewusst die Dimension großer Gewerbebauten wider und wird zu einem neuen, prägenden Baustein. Seine einzigartige Fassade mit grün eingefärbten GFK-Gitterrosten, die an rostenden Stahl erinnern, schlägt symbolisch eine Brücke zwischen dem Industrieerbe und einer grüneren Zukunft. Dies, zusammen mit "Pioneer Units" für resiliente Fassadenbegrünung, schafft einen unverwechselbaren Ortssinn, der die Historie des Standorts widerhallt.

Über die physische Struktur hinaus soll der Mobility Hub ein lebendiger Ankerpunkt für die Gemeinschaft werden. Er wird essentielle Dienstleistungen, Mikromobilitätsangebote, Ladestationen und 24/7-Einrichtungen beherbergen. Sein Potenzial zur Umwandlung in eine dynamische Eventfläche festigt seine Rolle als Anlaufstelle für Bewohner und die gesamte Külkenhalbinsel.

 

 

Projektstandort

Bremerhaven Külkenhalbinsel, Deutschland

Zeitraum

Nicht offener einstufiger Planngswettbewerb_2025

Auftraggeber

BIS mbH Bremerhaven, Land Bremen & Stadt Bremerhaven

In Zusammenarbeit mit

Projektleiter: Roger Riewe, Miriam Koudmani

Mitarbeiter: Maja Bäumer, Sebastian Henschel, Malgorzata Lizak, Tom Nitzsche, Robert Schalow

Fachplaner: LA.BAR Landschaftsarchitekten – Rüdiger Amend / WvS Part mbB – Wolfgang Keen / M&P Hamburg GmbH – Matthias Stehn

Bilder

Riegler Riewe Architekten